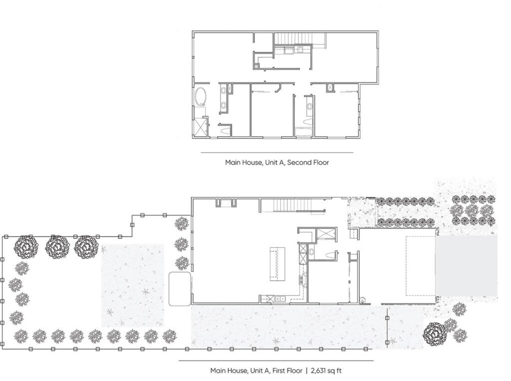
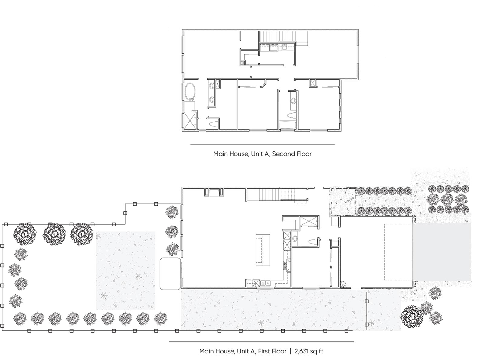
Unit A: 4 BR, 3BA Primary Home

Within the main house, Unit A offers 2,631 sq. ft. of living space. The unit is a two-story, 4-bedroom, 3-full-bathroom home with a 2-car garage. It features a beautifully designed open floor plan with a large kitchen, dining area, and living area. The brand-new kitchen appliances include a range/oven, dishwasher, refrigerator, washer/dryer, and garbage disposal. The primary bedroom has a walk-in closet, while the primary bathroom includes a walk-in shower, standalone tub, and double-sink vanity. The home also includes central heat and air, energy-efficient windows, and a private, landscaped, fenced backyard. There is also an attached 1-bedroom, 1-bathroom single-car garage accessory dwelling unit (ADU)– Unit B– that can be leased separately or along with this primary unit.
Illustrative Rendering

$3,700 per month, plus one month’s deposit. Minimum 12-month lease. Tenants are responsible for electricity, Wi-Fi, and cable/streaming services. The landlord will cover trash, water, and sewage. 

The deposit is equal to one month’s rent. 

A maximum of one (1) pet will be considered. 

For more information or to schedule a tour, please email Alisha Lanyi at Info@domeyko-taylor.com.